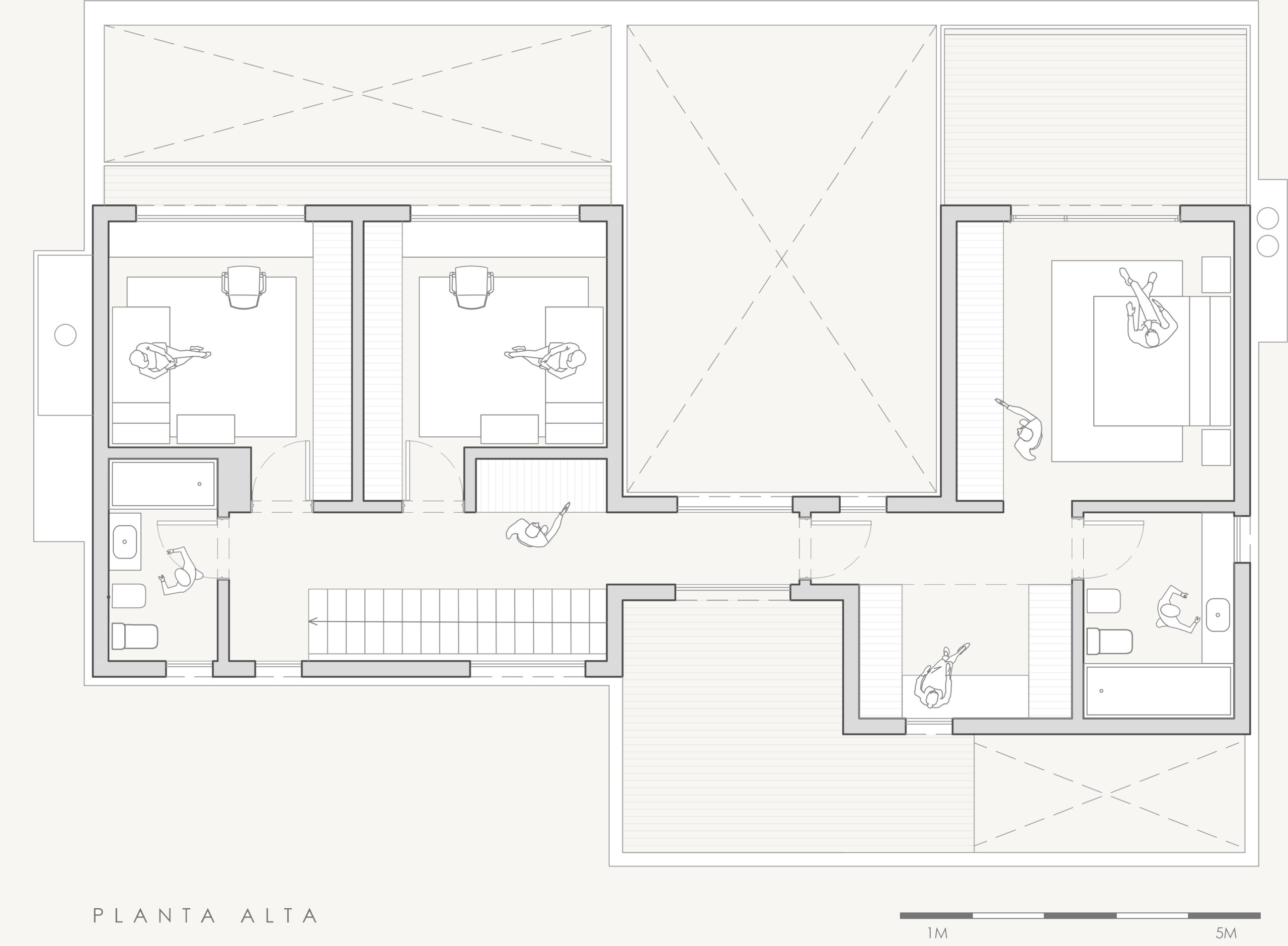
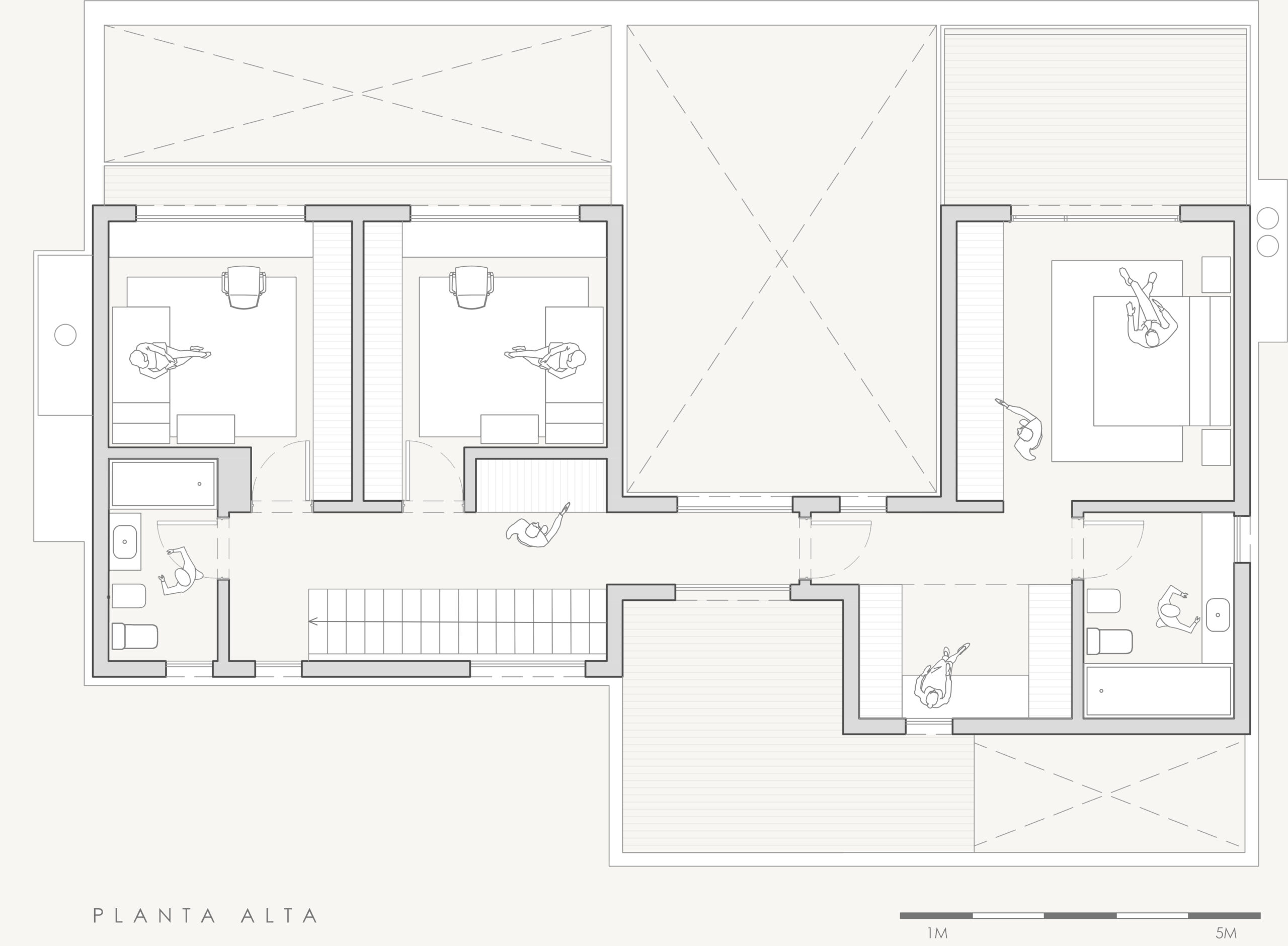
Casa Escobar I y II

Proyecto residencial en Escobar, que juega con volúmenes, materiales y texturas para generar un estilo minimalista y moderno que prioriza la amplitud visual y la integración con el entorno natural.

Leave a Reply